Spring naar content

Utrecht – Van Kleffenslaan 10

3527 CN Utrecht
  • 100 m² woonoppervlakte
  • 5 kamers
  • Bouwjaar 1960

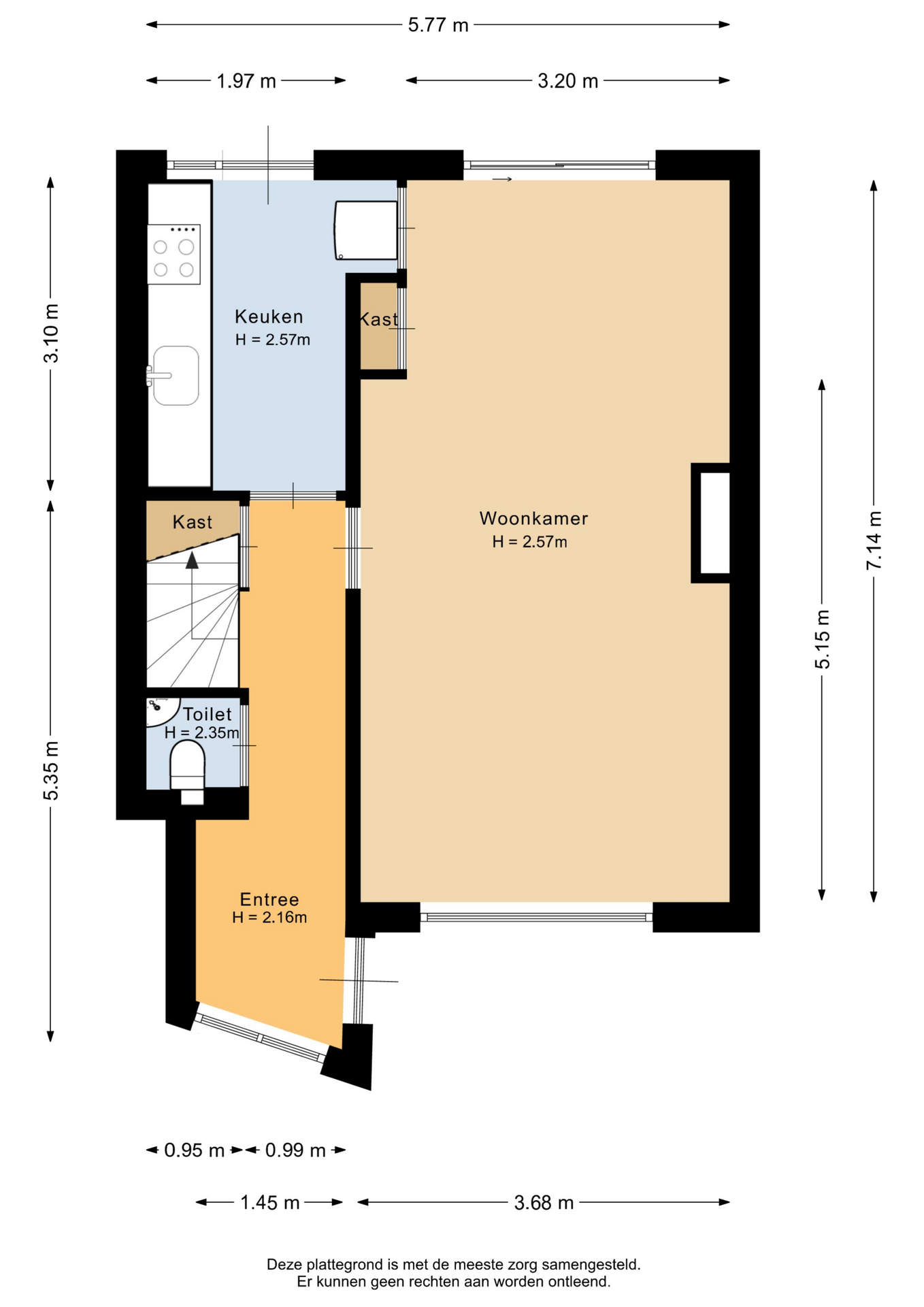
Plattegronden

Plattegrond
Plattegrond
Plattegrond
Plattegrond
Plattegrond
Plattegrond
Plattegrond
Plattegrond
Plattegrond
Plattegrond